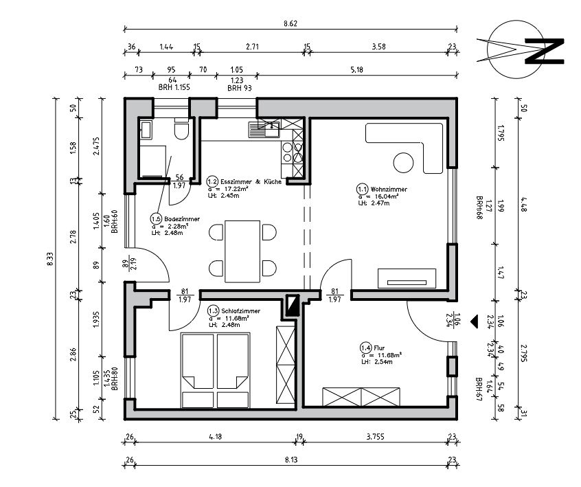
Grundrissplanerstellung auf CAD-Basis
Wir erstellen präzise, übersichtliche und maßstäbliche Grundrisspläne auf CAD-Basis.
Unsere Grundrisse eignen sich für Planung, Umbau, Dokumentation oder Immobilienvermarktung und werden individuell nach Ihren Vorgaben umgesetzt.
Was wir für Sie umsetzen
- Grundrisse für Neubau und Bestand
- Darstellung von Räumen, Wänden, Türen und Fenstern
- Maßketten und Flächenangaben
- Saubere Layer-Struktur
- Ausgabe in allen gängigen Dateiformaten

Warum unsere Grundrisspläne überzeugen
- Klar und verständlich aufgebaut
- Maßstäblich und normgerecht
- Gut weiterverwendbar für Planung und Abstimmung
- Einheitliche und saubere CAD-Struktur
- Individuelle Anpassung an dein Projekt
So entsteht Ihr Grundriss
- Sie stellen uns vorhandene Unterlagen, Maße oder Aufmassblätter zur Verfügung
- Wir stimmen uns zu Umfang, Darstellung und Ausgabeformat ab
- Wir erstellen die gewünschten Grundrisse in CAD
- Wir übergaben Ihnen unsere Pläne und führen ggf. Korrekturen aus
- Am Ende erhalten Sie von uns die entsprechenden Grundrisspläne
Technische Details
- CAD-Formate: DWG, DXF, PDF
- Maßstab nach Absprache
- Strukturierte Layer-Organisation
- Übergabe digital oder gedruckt (A0 – A4)
Interesse an einer Grundrissplanerstellung?
Schreiben Sie uns gerne oder sende uns Ihre Unterlagen. Wir melden uns zeitnah mit einer Einschätzung.
